??佛山源藝吊頂專注于鋁扣板吊頂行業20年,主營工程鋁扣板,集成吊頂,鋁蜂窩板,鋁方通方管,鋁條扣及鋁單板幕墻,產品廣泛應用于眾多大小型寫字樓、品牌商城、教育機構、醫療康復工程等吊頂工程。
??自主研發,生產,銷售,一站式采購節省20%成本!如果您對“河源鋁扣板批發-淺談鋁扣板行業的前景及發展方向”感興趣,歡迎來電咨詢 181-3839-3981/181-3839-3981,或點擊網頁右端的客服熱線聊天咨詢,我司將竭誠為您服務。
源藝·公司實力
20年專注鋁扣吊頂板工程研發、生產、安裝,60多種風格,100多種規格
9000+個工程案例,服務高級寫字樓、醫院工程、大型高校眾多領域
擁有大型生產基地,擁有設計、研發、生產團隊數十人,倉儲面積達2000平米
日產量超萬平,采用全自動的生產線,加快出貨速度,嚴格按照交期準時交貨
嚴格的選材標準,優選鋁鎂合金1100,規范化生產流程,遵循ISO9001質量管理體系
9道生產標準,表面處理匠心工藝,杜絕以次充好,保證每一批質量穩定
設計、生產、安裝、提供免費技術服務支持,有效解決客戶工程疑問,讓您無后顧之憂
有完善的售前、售中、售后服務,強大客服團隊一對一全程貼心跟進,讓您舒心放心
鋁扣板批發廠家表示鋁扣板吊頂材料主體為金屬鋁板,其表層根據吸朔、噴漆、打磨拋光等加工工藝,光滑鮮麗,顏色豐美利龍源藝,而且慢慢替代塑料扣板。鋁扣板吊頂使用性能強,不容易形變、不容易裂開,層次感和裝飾設計感層面均好于塑料扣板,且具備防火安全、防水、防腐蝕、防靜電、吸音、隔音性、美觀美利龍源藝、經美利龍源藝用等特性。

機房微孔鋁扣板吊頂的功效:

1.品牌代理:要是需求使用較小的。選擇一些線下實體店鋪的品牌代理也是集成鋁扣板批發商的進貨貨源,在選擇這類品牌的時候,一定要盡量挑一些出名的、質量比較好的品牌進行進貨。同時也要對比不同品牌對于加盟賣家的要求,這樣也是尋找到較低價格的方法,

應用材料:鋁扣板吊頂相應配合不同的主龍骨,鋁扣板批發廠家表示一般方形的鋁扣板吊頂配合輕鋼龍骨,條型的鋁扣板吊頂應用美利龍源藝金主龍骨或是熱鍍鋅主龍骨,墻頂開洞深層以3-4cm為宜,防止毀壞墻頂的電纜線和地面防水。

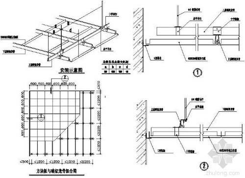
安裝中注意問題

七夕節:農歷七月初七是七夕節,又名乞巧節、七巧節或七姐誕。 發源于中國,是華人地區以及部分受漢族文化影響的美利龍源藝國家傳統節日,在農歷七月初七慶祝。來自于牛郎與織女的傳說。由于古代女子希望以織女為榜樣。所以每逢七姐誕,她們都會向七姐獻祭,祈求自己能夠心靈手巧、獲得美滿的姻緣。這是中國傳統節日中最具浪漫色彩的一個節日。鵲橋仙·纖云弄巧宋代:秦觀纖云弄巧,飛星傳恨,銀漢迢迢暗度。金風玉露一相逢,便勝卻人間無數。度 通:渡柔情似水,佳期如夢,忍顧鵲橋歸路。兩情若是久長時,又豈在朝朝暮暮。譯文:纖薄的云彩在美利龍源藝中變幻多端,天上的流星傳遞著相思的愁怨,遙遠無垠的銀河今夜我悄悄渡過。在秋風白露的七夕相會,就勝過塵世間那些美利龍源藝廝守卻貌合神離的夫妻。共訴相思,柔情似水,短暫的相會如夢如幻,分別之時不忍去看那鵲橋路。只要兩情至死不渝,又何必貪求卿卿我我的朝歡暮樂呢。 佛山市美利龍源藝裝飾材料有限公司再此祝愿各位七夕節快樂!

1、吊頂不平:主龍骨安裝時吊桿調平不認真,各吊桿點海拔不一致,施工時要認真操作,鋁扣板批發廠家表示檢查各吊桿點的緊密度,再畫線檢查海拔美利龍源藝坦度是否符合設計要求和規范標準的規定。2.輕鋼骨架局部節點的結構不合理:應根據擋孔、燈具開孔、排氣等設計要求在相應節點上設置輕鋼龍骨框架以便設備的安裝。鋁扣板批發廠家表示不可直接在鋁扣板吊美利龍源藝對物體進行加固3、輕鋼骨架吊裝不牢固:天花板輕鋼骨架應吊裝在主體結構上,吊桿螺母應擰緊,鋁扣板批發廠家表示控制設計海拔固定在天花板內的管道和設備應吊裝在輕鋼框架上。4、板塊間隙不直:蓋板規格有偏差,安裝不正確,施工時要注意板的規格或者是板與輔料之間的規格是否匹配,鋁扣板批發廠家表示龍骨平直且水平,確保安裝固定時平直。5、購買鋁扣板吊頂是應該注意鋁扣板的生產批次,鋁扣板批發廠家表示即使是同一款的鋁扣板生產批次不同鋁扣板之間還是會產生微量的色差,所以在購買時一定要進行再三的比較。

源藝全國服務熱線